Max Dudler AOK Bremerhaven

Der Neubau der AOK Bremerhaven adaptiert den Backstein-Expressionismus in eine moderne Formensprache. Das Gebäude befindet sich im Stadtteil Geestemünde an der Zufahrt vom Hafen zur Innenstadt. 

 

Meldung: Max Dudler Presse

Max Dudler AOK Bremerhaven 02Der Neubau befindet sich im Stadtteil Geestemünde an der Zufahrt vom Hafen zur Innenstadt. Die städtebauliche Figur des Hauses formuliert den Übergang zwischen dem urbanen Raum der Stadt, dem maritimen Charakter des Hafens und den geplanten Grünraum um den Yachthafen. Aus einem kompakten, dreistufigen Aufbau verwirklicht das Gebäude eine spannungsreiche Gebäudekubatur mit schlankem Hochhaus-Akzent. Die Backsteinfassade nimmt Bezug zur baukünstlerischen Tradition Norddeutschlands.

 

Die neue AOK Hauptgeschäftsstelle liegt zentral zwischen Hafen und Stadt auf einem Grundstück mit dreieckigem Zuschnitt. Die städtebauliche Figur des Hauses thematisiert die unterschiedlichen räumlichen Qualitäten seines Umfeldes. Das Haus entwickelt eine urbane Ansicht zur Stadt und zum Hafen und eine geöffnete Seite in Richtung Park und Yachthafen. 
 
Der Baukörper ist vertikal in Sockel, Schaft und Attika dreigeteilt. Die Baukörperstaffelungen beziehen sich auf die vorgefundenen stadträumlichen Strukturen und Höhenebenen. Die kleine Hochhausscheibe wiederholt den Hochpunkt auf der gegenüberliegenden Straßenseite. Die schmale und hohe Eingangsfassade schiebt sich in den Straßenraum und ist schon vom Hafen aus zu sehen. Eine abknickende Flanke führt das Gebäude von der hohen Eingangsfassade fünfgeschossig in Richtung des Platzes fort. Auf der Rückseite wendet sich das Haus mittels einer abtreppenden Baufigur zum Park hin. 
 
Obwohl - oder gerade weil - er sich aus der Umgebung heraus formuliert, erscheint der Bau als eigenständige Stadtfigur, welche das Umfeld zu binden vermag. Die drei Bauteile stehen im Dreieck zueinander und bilden in ihrer Mitte einen Luftraum, der das Gebäude auch im Inneren strukturiert. Das Zusammenwirken der unterschiedlichen Ebenen und Winkel erzeugt einen Kontrast zur an sich schlichten und gleichmäßigen Fassadengestaltung. Es entsteht eine vielansichtige Figur, die den Übergang von Stadt zu Grün- und Freiflächen thematisiert. 
 
Die zentrale Kundenhalle im Gebäudeinneren ist als offener Bereich angelegt, den man von der Stadt aus betritt und der auf seiner Rückseite einen freien Blick auf den neuen Park gewährt. Durch den Luftraum, der sich aus der geometrischen Verschneidung der drei Bauteile entwickelt, öffnet sich der Raum nach oben und sorgt im Inneren des Gebäudes für ausreichendes Tageslicht. Die großzügige, lichtdurchflutete Halle bietet Platz für die Kundendienstund Beratungsleistungen der AOK.
 
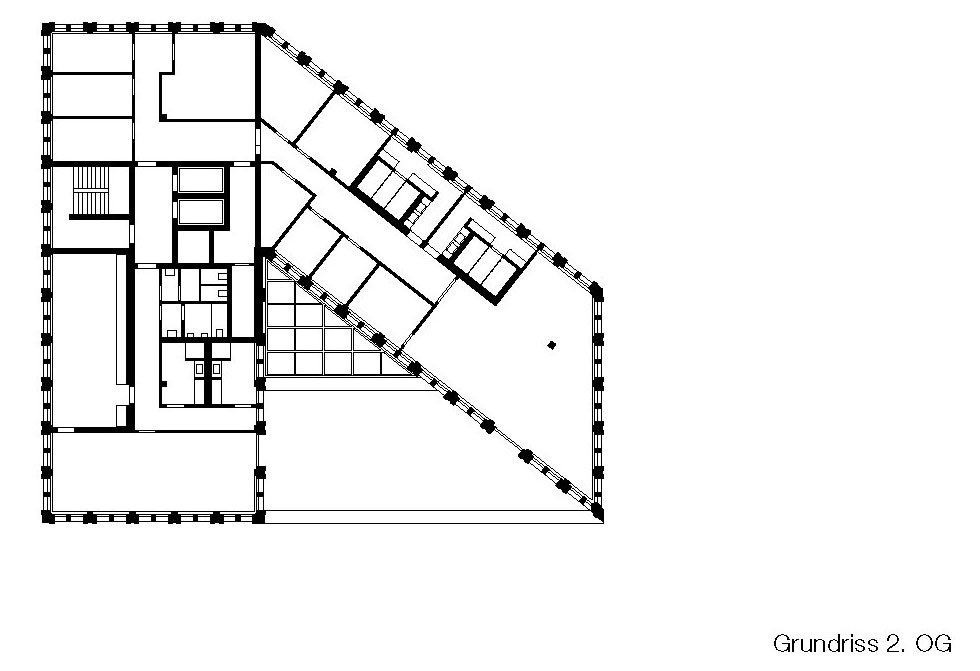
Die öffentlichen Bereiche der Kundenhalle setzen sich im 1. Obergeschoss fort, im 2. Obergeschoss sind halböffentliche Bereiche, wie Gymnastikraum, Lehrküche und Kantine angeordnet. Vom Gastraum im 2. Obergeschoss aus betritt man die Terrasse, auf der ein Mittagessen im Freien mit Blick auf Park und Yachthafen möglich ist. Oberhalb der Bürogeschosse liegt im 7. Obergeschoss der Konferenzbereich und bietet eine weite Aussicht über die ganze Stadt, die imposanten Anlagen des Überseehafens bis hin zur offenen Wesermündung. 
 
Der Bezug zur maritimen Großstadt kommt in der Wahl des Fassadenmaterials deutlich zum Ausdruck. Der helle lokale Wasserstrichziegel orientiert sich einerseits am unmittelbaren Umfeld, reagiert aber andererseits auch auf die historischen und neuen Gebäude am Hafenbecken. Die texturhafte Oberflächenstruktur des Ziegels unterstützt die figürliche Qualität des Gebäudes. 
 
Die Konturierung der Hauptstützen ist eine Übersetzung von Motiven des Backstein-Expressionismus und verweist so auf die baukünstlerische Tradition Norddeutschlands. Die Gestaltung des neuen AOK Gebäudes adaptiert die lokale Tradition in eine moderne Formensprache, ohne den Bezug zur Vergangenheit zu verlieren. 
 
INFOS
Name des Bauwerks Hauptgeschäftsstelle AOK Bremerhaven
Standort Columbusstraße 1, 27570 Bremerhaven
Bauherr/Bauherrenvertretung AOK Bremen/Bremerhaven Bürgermeister-Smidt-Straße 95, 28195 Bremen
Nutzer/Nutzung Bauherr
Bauvolumen 4.800 m2
Baukosten KG 300: ca. 5.000.000 Euro
                KG 400: ca. 2.000.000 Euro
                KG 200 - 700: ca. 8.000.000 Euro
Planungs- und Bauzeit 09/2012–04/2015
Architekt Max Dudler, www.maxdudler.com
Projektleiter Georg Schönborn
Mitarbeiter Gerald Friedel, Iris Frieler, Keke Ye, Katrin Schmitz, Kristin Siedelmann, Björn Werner
Tragwerksplaner ZKHL Zill Klochinski Hütter Scharmann, Bremen
TGA und Elektroplanung Schlüter & Thomsen Ingenieurgesellschaft mbh & Co. KG, Neumünster Bauphysik ZKHL Zill Klochinski Hütter Scharmann, Bremen
Akustik AMT Ingenieurgesellschaft mbH, Isernhagen
Brandschutzkonzept Ingenieurgesellschaft Stürzl mbH, Dollern
Innenausstattung GfG Gruppe für Gestaltung, Bremen
Außenanlagen Horeis + Blatt Partnerschaft
Landschaftsarchitekten, Bremen DGNB-Auditor Rudolphi & Rudolphi GmbH, Berlin
Fotograf Stefan Müller, Berlin
 

  • Max-Dudler_AOK-Bremerhaven_00a
  • Max-Dudler_AOK-Bremerhaven_00b
  • Max-Dudler_AOK-Bremerhaven_00c
  • Max-Dudler_AOK-Bremerhaven_00d
  • Max-Dudler_AOK-Bremerhaven_00e
  • Max-Dudler_AOK-Bremerhaven_01
  • Max-Dudler_AOK-Bremerhaven_02
  • Max-Dudler_AOK-Bremerhaven_03
  • Max-Dudler_AOK-Bremerhaven_03a
  • Max-Dudler_AOK-Bremerhaven_03b
  • Max-Dudler_AOK-Bremerhaven_03c
  • Max-Dudler_AOK-Bremerhaven_03d
  • Max-Dudler_AOK-Bremerhaven_03e
  • Max-Dudler_AOK-Bremerhaven_06
  • Max-Dudler_AOK-Bremerhaven_06a
  • Max-Dudler_AOK-Bremerhaven_06b
  • Max-Dudler_AOK-Bremerhaven_07
  • Max-Dudler_AOK-Bremerhaven_07a
  • Max-Dudler_AOK-Bremerhaven_07b

Simple Image Gallery Extended

Letzte Änderung am Montag, 26 September 2016 21:16
Click me